Réf : 3367-A001A

Neydens (74160) Appartement T4 - 80 m² - 74160 NEYDENS

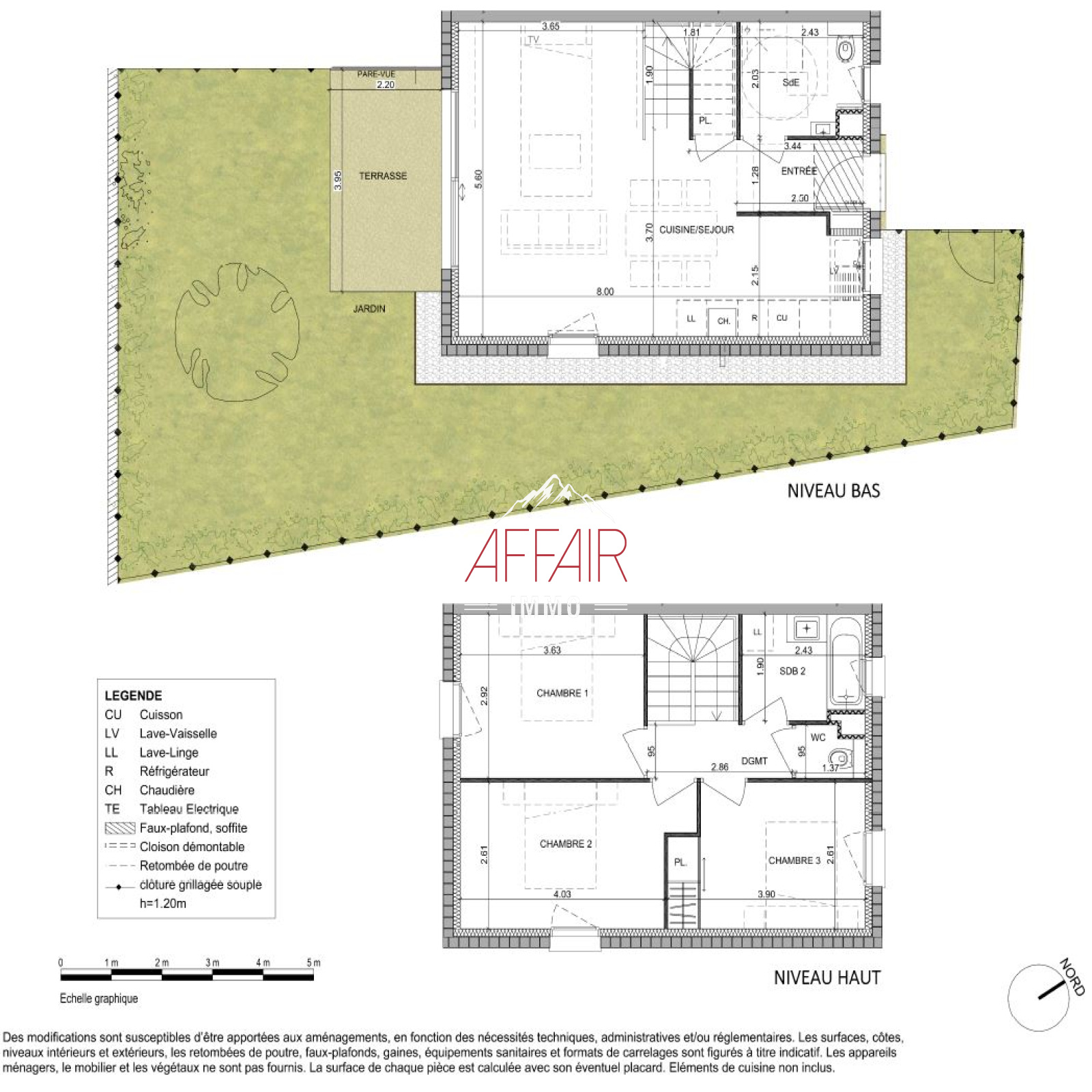
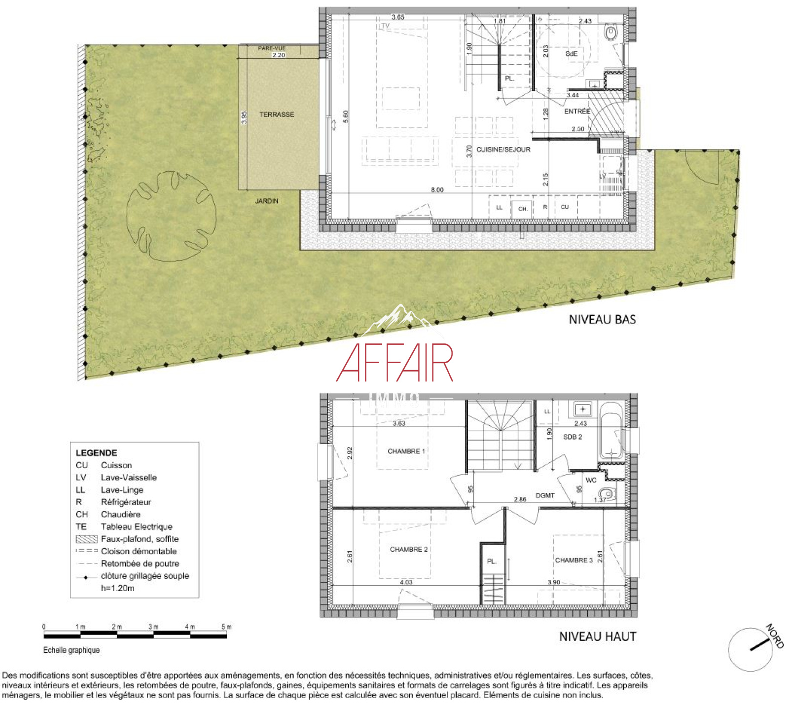
Sur la commune de NEYDENS (74160), à 10 min de la douane de Croix de Rozon - 20 minutes de GENEVE et de l'aéroport, à proximité des écoles, crèche, commerces et accès autoroute. Vue dégagée sur les champs, compromis entre maison et appartement de type 4 en duplex de 80 m² avec sa terrasse et son jardin. Au rez de chaussée une entrée, un espace cuisine ouverte sur la pièce de vie, un wc avec lave-mains et possibilité d'installer une douche, à l'étage trois chambres, une salle de bains et un wc indépendant.Chauffage par pompe à chaleur au sol sur les deux niveaux. Pour compléter ce bien deux places de parking extérieures et une cave. Possibilité d'acquérir un garage et/ou un place de parking en sous-sol. FRAIS DE NOTAIRE REDUIT - PRIX PROMOTEUR - Dispositif de défiscalisation : PINEL, LMNP, LMP

Les caractéristiques Du bien

Code postal 74160
Surface habitable (m²) 80 m²
Nombre de chambre(s) 3
Nombre de pièces 4
Nombre de niveaux 2
Nb de salle de bains 1
Mode de chauffage Pompe à chaleur
Type de chauffage Au sol
Format de chauffage Individuel
Terrasse OUI
Murs mitoyens 1
Cave OUI
Nombre de parking 1
Exposition Sud-Est

Les infos Financières

Prix de vente honoraires TTC inclus 500 000 €

Les infos Energetiques

DPE GES
DPE ANCIENNE VERSION

Nos outils

Imprimer
Rez de chaussée
salon/sejour 33.24 m²

salle de bain 4.67 m²

Etage 1
chambre 10.59 m²

chambre 11.09 m²

chambre 9.54 m²

* Champ obligatoire

contacter l'agence
Les informations recueillies sur ce formulaire sont enregistrées dans un fichier informatisé par La Boite Immo agissant comme Sous-traitant du traitement pour la gestion de la clientèle/prospects de l'Agence / du Réseau qui reste Responsable du Traitement de vos Données personnelles.
La base légale du traitement repose sur l’intérêt légitime de l'Agence / du Réseau.
Elles sont conservées jusqu'à demande de suppression et sont destinées à l'Agence / au Réseau.
Conformément à la loi « informatique et libertés », vous pouvez exercer votre droit d'accès aux données vous concernant et les faire rectifier en contactant l'Agence / le Réseau.
Si vous estimez, après avoir contacté l'Agence / le Réseau, que vos droits « Informatique et Libertés » ne sont pas respectés, vous pouvez adresser une réclamation à la CNIL.
Nous vous informons de l’existence de la liste d'opposition au démarchage téléphonique « Bloctel », sur laquelle vous pouvez vous inscrire ici : https://www.bloctel.gouv.fr 
Dans le cadre de la protection des Données personnelles, nous vous invitons à ne pas inscrire de Données sensibles dans le champ de saisie libre
Ce site est protégé par reCAPTCHA, les Politiques de Confidentialité et les Conditions d'Utilisation de Google s'appliquent.
Ces biens peuvent aussi vous intéresser
Neydens (74160)

Appartement T4 - 80 m² - 74160 NEYDENS

Neydens (74160)

Appartement T4 - 80 m² - 74160 NEYDENS