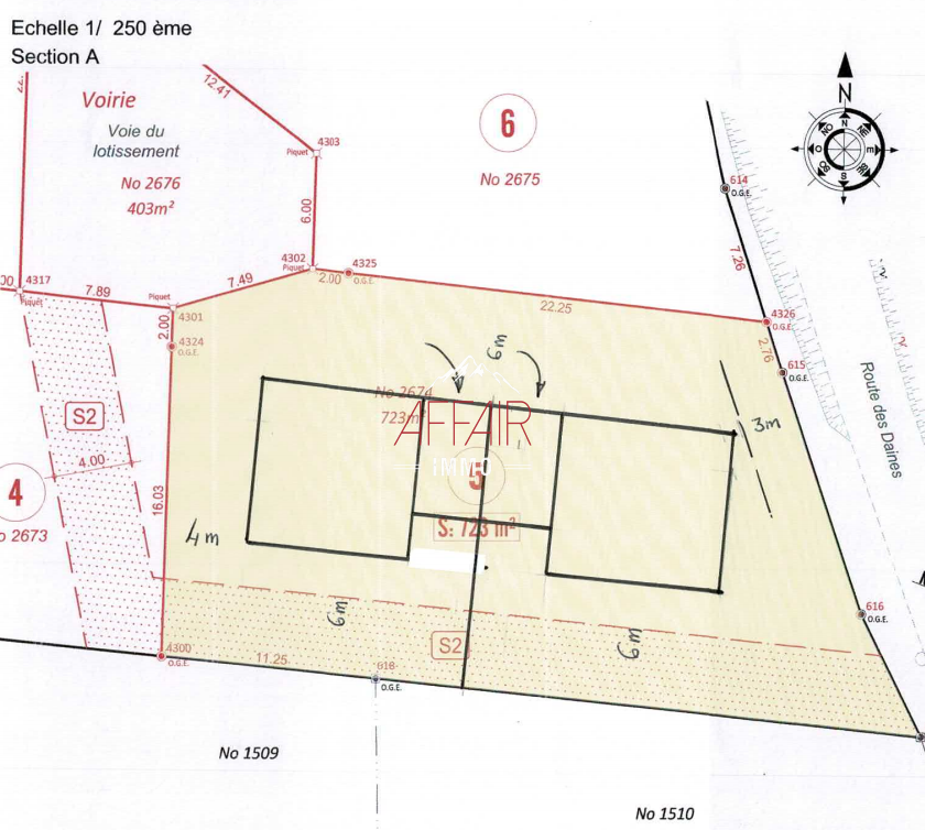
Frangy (74270) TERRAIN - 74270 FRANGY 215 000 €
EN EXCLUSIVITE - FRANGY - 74270 - 20 MINUTES DE ST JULIEN EN GENEVOIS - 35 MINUTES AEROPORT DE GENEVE - Secteur Haut de Collonges - Emplacement...
Réf : 3531
