Réf : 3367-A1

Neydens (74160) Maison mitoyenne T4 - 80 m² - 74160 NEYDENS

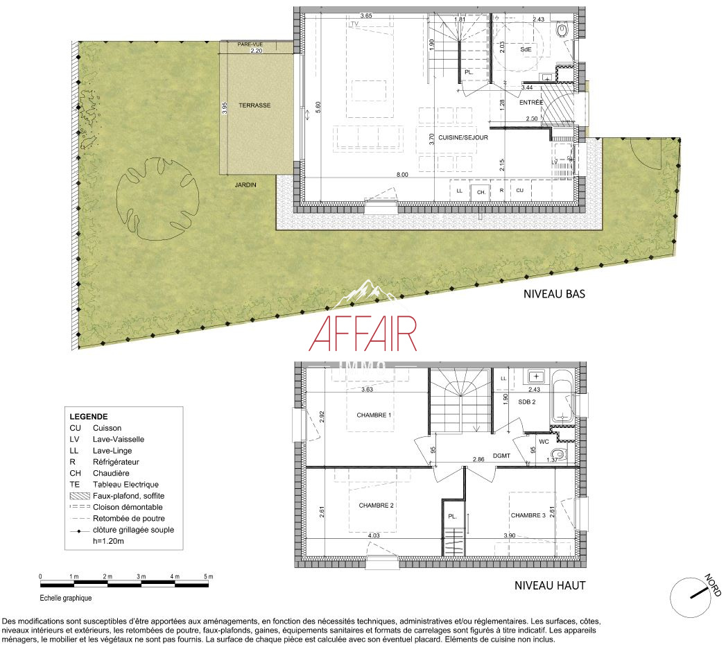
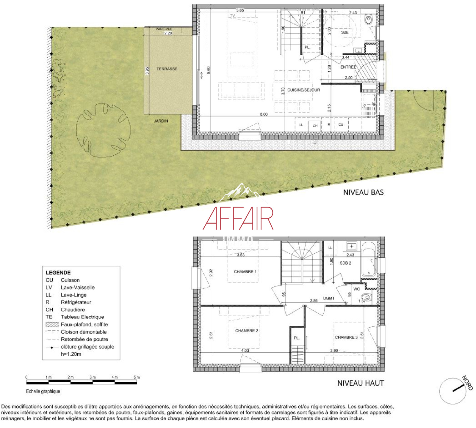
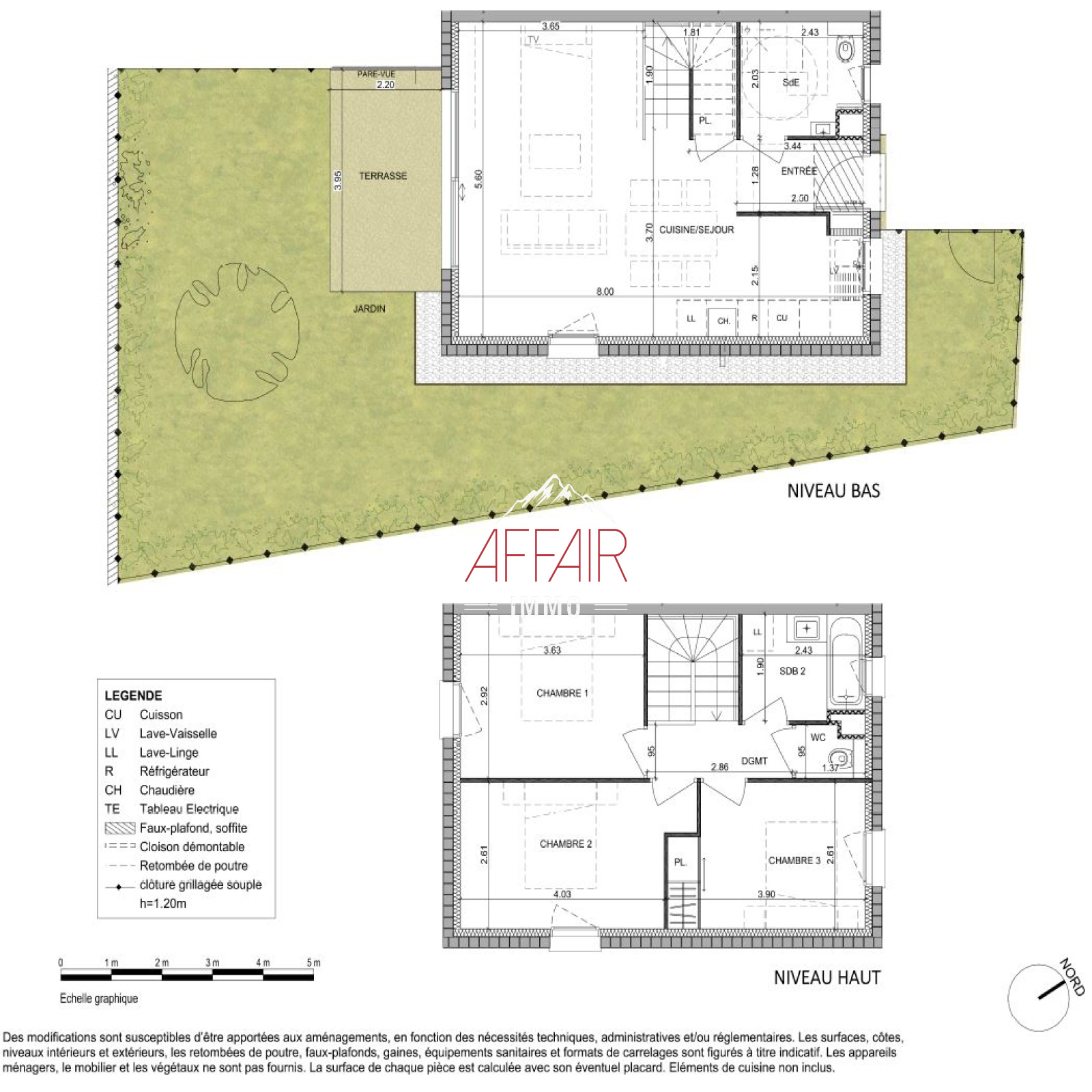
Sur la commune de NEYDENS (74160), à 10 min de la douane de Croix de Rozon - 20 minutes de GENEVE et de l'aéroport, à proximité des écoles, crèche, commerces et accès autoroute. Vue dégagée sur les champs, maison mitoyenne de type 4 en duplex de 80 m² avec sa terrasse et son jardin. Au rez de chaussée une entrée, un espace cuisine ouverte sur la pièce de vie, un wc avec lave-mains et possibilité d'installer une douche, à l'étage trois chambres, une salle de bains et un wc indépendant.Chauffage par pompe à chaleur au sol sur les deux niveaux. Pour compléter ce bien deux places de parking extérieures et une cave. Possibilité d'acquérir un garage et/ou un place de parking en sous-sol. FRAIS DE NOTAIRE REDUIT - PRIX PROMOTEUR - Dispositif de défiscalisation : PINEL, LMNP, LMP

Les caractéristiques Du bien

Code postal 74160
Surface habitable (m²) 80 m²
Nombre de chambre(s) 3
Nombre de pièces 4
Nombre de niveaux 2
Nb de salle de bains 1
Mode de chauffage Pompe à chaleur
Type de chauffage Au sol
Format de chauffage Individuel
Terrasse OUI
Murs mitoyens 1
Cave OUI
Nombre de parking 1
Exposition Sud-Est
Copropriété NON

Les infos Financières

Prix de vente 500 000 €
Les honoraires d'agence seront intégralement à la charge du vendeur  

Les infos Energetiques

DPE GES
DPE ANCIENNE VERSION

Nos outils

Imprimer
Rez de chaussée
salon/sejour 33.24 m²

salle de bain 4.67 m²

Etage 1
chambre 10.59 m²

chambre 11.09 m²

chambre 9.54 m²

* Champ obligatoire

contacter l'agence
Les informations recueillies sur ce formulaire sont enregistrées dans un fichier informatisé par La Boite Immo agissant comme Sous-traitant du traitement pour la gestion de la clientèle/prospects de l'Agence / du Réseau qui reste Responsable du Traitement de vos Données personnelles. La base légale du traitement repose sur l'intérêt légitime de l'Agence / du Réseau. Elles sont conservées jusqu'à demande de suppression et sont destinées à l'Agence / au Réseau. Conformément à la loi « informatique et libertés », vous disposez des droits d’accès, de rectification, d’effacement, d’opposition, de limitation et de portabilité de vos données. Vous pouvez retirer votre consentement à tout moment en contactant directement l’Agence / Le Réseau. Consultez le site https://cnil.fr/fr pour plus d’informations sur vos droits. Si vous estimez, après avoir contacté l'Agence / le Réseau, que vos droits « Informatique et Libertés » ne sont pas respectés, vous pouvez adresser une réclamation à la CNIL. Nous vous informons de l’existence de la liste d'opposition au démarchage téléphonique « Bloctel », sur laquelle vous pouvez vous inscrire ici : https://www.bloctel.gouv.fr Dans le cadre de la protection des Données personnelles, nous vous invitons à ne pas inscrire de Données sensibles dans le champ de saisie libre.
Ce site est protégé par reCAPTCHA, les Politiques de Confidentialité et les Conditions d'Utilisation de Google s'appliquent.
Ces biens peuvent aussi vous intéresser
Neydens (74160)

APPARTEMENT T3 - 76 M² - NEYDENS 74160

Neydens (74160)

APPARTEMENT T3 - 70 M² - NEYDENS 74160