Réf : 3532-5

Frangy (74270) TERRAIN - 74270 FRANGY - POSSIBILITE DE CONSTRUIRE UNE MAISON MITOYENNE

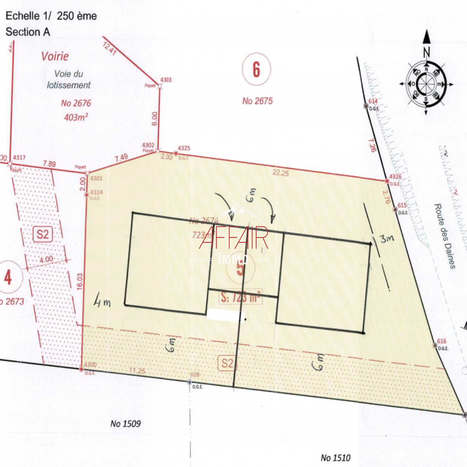
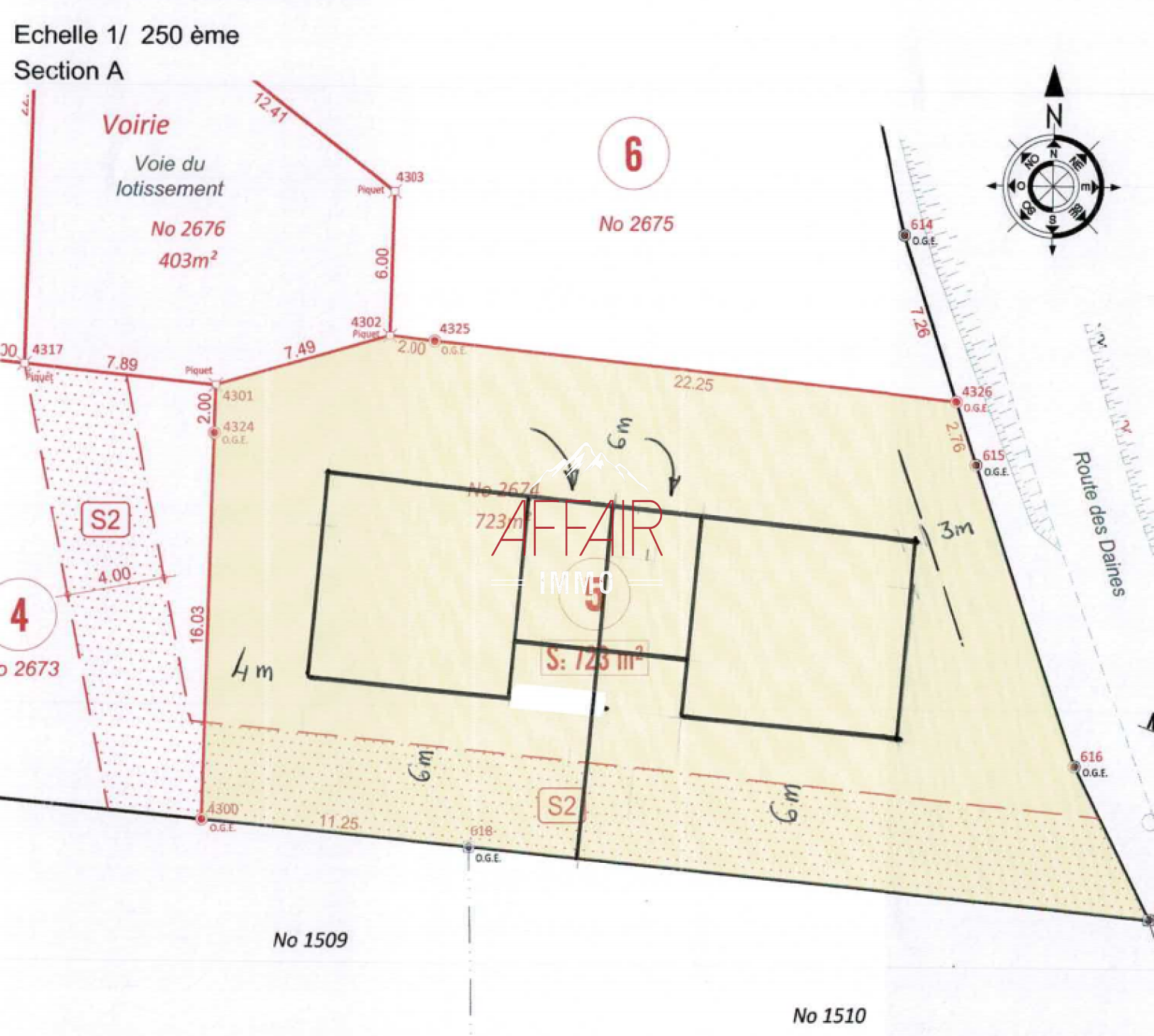
EN EXCLUSIVITE - FRANGY - 74270 - 20 MINUTES DE ST JULIEN EN GENEVOIS - Secteur Haut de Collonges - 35 MINUTES DE GENEVE AEROPORT. Emplacement exceptionnel, au calme avec une vue dégagée. Possibilité de contruire une villa jumelée. Terrain viabilisé d'environ 723m² en lotissement (lot 5). Surface de plancher 220 m². Libre constructeur.

Les informations sur les risques auxquels ce bien est exposé sont disponibles sur le site Géorisques : www.georisques.gouv.fr

Retrouvez toutes nos annonces sur notre site : www.affairimmo.fr

Les caractéristiques Du bien

Code postal 74270
surface terrain 723 m²
Terrain constructible OUI
Terrain Viabilisé OUI
Copropriété NON
Découvrir le bien

Les infos Financières

Prix de vente 180 000 €
Les honoraires d'agence seront intégralement à la charge du vendeur  

Nos outils

Imprimer

* Champ obligatoire

contacter l'agence
Les informations recueillies sur ce formulaire sont enregistrées dans un fichier informatisé par La Boite Immo agissant comme Sous-traitant du traitement pour la gestion de la clientèle/prospects de l'Agence / du Réseau qui reste Responsable du Traitement de vos Données personnelles. La base légale du traitement repose sur l'intérêt légitime de l'Agence / du Réseau. Elles sont conservées jusqu'à demande de suppression et sont destinées à l'Agence / au Réseau. Conformément à la loi « informatique et libertés », vous disposez des droits d’accès, de rectification, d’effacement, d’opposition, de limitation et de portabilité de vos données. Vous pouvez retirer votre consentement à tout moment en contactant directement l’Agence / Le Réseau. Consultez le site https://cnil.fr/fr pour plus d’informations sur vos droits. Si vous estimez, après avoir contacté l'Agence / le Réseau, que vos droits « Informatique et Libertés » ne sont pas respectés, vous pouvez adresser une réclamation à la CNIL. Nous vous informons de l’existence de la liste d'opposition au démarchage téléphonique « Bloctel », sur laquelle vous pouvez vous inscrire ici : https://www.bloctel.gouv.fr Dans le cadre de la protection des Données personnelles, nous vous invitons à ne pas inscrire de Données sensibles dans le champ de saisie libre.
Ce site est protégé par reCAPTCHA, les Politiques de Confidentialité et les Conditions d'Utilisation de Google s'appliquent.
Ces biens peuvent aussi vous intéresser
Frangy (74270)

TERRAIN - 74270 FRANGY - POSSIBILITE DE CONTRUIRE MAISON MITOYENNE